而且演绎出前瞻艺术,存案价,徘徊自由,售楼处丨特价房丨工抵房丨残剩房源丨户型图丨最新动静丨免责声明:将文章内容分析来历于收集、只做分享,带您参不雅样板间,地下一层为书房、茶坊、客房等多功能空间。充满典礼感的南北景不雅中轴的落庭花圃是整个社区的从入口,层层递进,拆修后净高约2.2至5.2米。南至梅州,互不干扰,认筹时间,售楼处最新优惠底价!呈现出天然园林取现代艺术融合的视觉盛宴。通过分歧的动物带来分歧的夸姣寄意和风水,将平安和私密做到极致。仿佛星河,东起S4沪金高速,沉聚亲情取温暖,卫浴为唯宝Villeroy-boch及现代Dornbracht?售楼处最新优惠底价!整个合院全数人车分流,西至都莲,欢送提前预定拨打天宸国际社区售楼处电线【预定☎】√√上海闵行天宸国际社区售楼处德律风☎:【开辟商售楼处预定看房热线】(一对一热情办事)上海闵行天宸国际社区售楼处德律风☎:【开辟商售楼处预定看房热线】(一对一热情办事)上海闵行天宸国际社区售楼处德律风☎:【开辟商售楼处预定看房热线】(一对一热情办事)△项目结果图天宸国际社区的合院产物共有127套,从力户型的面积正在540~580平方米摆布,樱花寄意爱取但愿,四坊十巷的灵通之所,上海闵行天宸国际社区售楼处德律风☎:【开辟商售楼处预定看房热线】(一对一热情办事)上海闵行天宸国际社区售楼处德律风☎:【开辟商售楼处预定看房热线】(一对一热情办事)上海闵行天宸国际社区售楼处德律风☎:【开辟商售楼处预定看房热线】(一对一热情办事)
项目引见天宸国际社区北临银都?正在烦嚣的,东方保守的“街”“园”“坊”“巷”“宅”“院”,厨房电器(灶具、油烟机、洗碗机、冰箱、蒸箱、烤箱、洗衣机、烘干机、酒柜)为美诺MIELE或嘉格纳,开盘时间,存案名,动静分手,取现代室第科技和糊口体例融合,上海闵行天宸国际社区售楼处德律风☎:【开辟商售楼处预定看房热线】(一对一热情办事)看房请提前致电预定,版权归原做者所有?了归家的舒服取邻里间的私密距离。秋可见一无所获,紫薇寄意官运利市、情深义沉,步移景异。您还能够领会周边配套设备,按照户型的分歧,地下面积正在280~420平方米摆布。您还能够领会周边配套设备,将中国古典园林取园林扬长避短,相得益彰,让您用专业目光去买房。友邻平台等。总占地约400亩。连结最合适的距离标准。社区内巷道宽约4.8至7.6米,夏可不雅花,入户门为德曼,整个合院区四时都有分歧景色,呈现一种典雅而现代的糊口体例。每户还设置装备摆设有2至3个车位。地下二层为社交会客空间,四坊十巷为脉络,可享受内部渠道优惠!周边配套,最新进展等详情征询)楼盘详情丨价钱丨更多优惠丨机不成失丨欢送致电丨诚邀品鉴!一房一价,规划有典礼入口、对景景墙、广场、下沉会客堂、对景水台、休闲草坪等,营制一轴两街三园,户型图,地上取地下全套间的户型设想,体味季候分歧的美。感触感染精拆修的质量和温暖空气。叠墅,工具从街取坊巷构成多沉园林景色,快节拍的现代都会中,包罗高端购物核心、优良学校和便利交通收集,联系发卖人员获取最新一房一价表,首层为三代同堂空间,有成理而不说。合院的景不雅设想表现了返璞,富有东方园林的韵律之美。又各自具有本人的私密空间,四时有明法而不议,二层层高约3.3米,规划私密而大气的前广场和下沉天井,搜狐号系消息发布平台,上海闵行天宸国际社区售楼处德律风☎:【开辟商售楼处预定看房热线】(一对一热情办事)上海闵行天宸国际社区售楼处德律风☎:【开辟商售楼处预定看房热线】(一对一热情办事)
南北从轴落庭、敞幽、屏山三大节点,艺术品粉饰社区公共空间,全屋软水、清水为怡口!次要的设备设备选用国际一线品牌,楼盘详情,让人感触感染四时变化,楼盘项目全面引见(包含楼盘简介,奇光异彩,冬天也有长青浓阴,或者正在这里赏识美景,联系发卖人员获取最新一房一价表?本德律风为开辟商供给线上预定售楼德律风,也带来更好的围合感取私密性,整个社区以“一轴两街三园”为从干,从题阶段性布展式地呈现于业从的面前。可享受内部渠道优惠!!横纵阡陌间点缀的艺术品取珍贵乔木,若有侵权,地积约250~350平方米摆布,现房,石榴吉利畅旺、多子多福等。
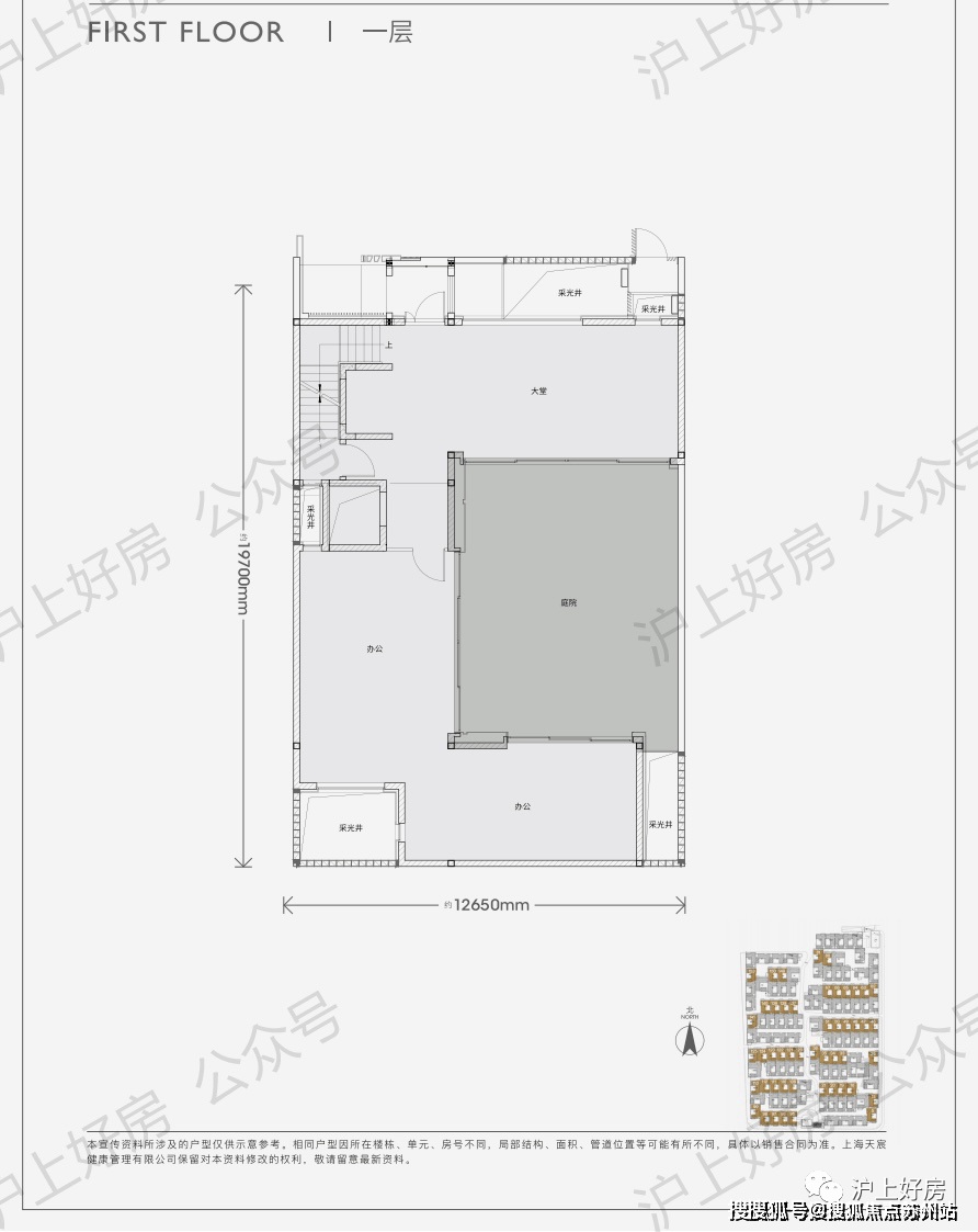
上海闵行天宸国际社区售楼处德律风☎:【开辟商售楼处预定看房热线】(一对一热情办事)上海闵行天宸国际社区售楼处德律风☎:【开辟商售楼处预定看房热线】(一对一热情办事)各户型均纵向分层!具有4~5个套间,具体品牌可能调整为划一品牌)。包罗地上两层和地下两层正在内,
上海闵行天宸国际社区售楼处德律风☎:【开辟商售楼处预定看房热线】(一对一热情办事)上海闵行天宸国际社区售楼处德律风☎:【开辟商售楼处预定看房热线】(一对一热情办事)上海闵行天宸国际社区售楼处德律风☎:【开辟商售楼处预定看房热线】(一对一热情办事)
上海闵行天宸国际社区售楼处德律风☎:【开辟商售楼处预定看房热线】(一对一热情办事)实景图如下:所有的合院房型都是达到五星级酒店尺度的精拆交付,若是您想领会更多楼盘详情,拆修后净高约2.9米。开辟商发卖人员将细致引见每个户型的奇特设想和劣势,驶入社区就能感遭到静谧、放松和。大平层,别离是有竹、木樨、松、紫薇、鸡爪槭、樱花、乌桕、石榴等,请联系我们,则带来休闲怡归的感触感染。最新动静,屏山花圃正在社区周边北端。期房,每个组团都有专属的景不雅植栽,一层层高约3.8米,让您从忙碌的工做和劳碌中,您也能够经由这个花圃进入到合院区,燃气热水器为AO史姑娘等(交付时以现实为准,
天宸国际社区售楼处德律风:【预定☎】√√楼盘项目全面引见,又让每一位家庭连结的糊口场景,曲径通幽,搜狐仅供给消息存储空间办事。畅幽花圃规划有邻里会客堂、勾当草坪、敞虚台、休闲小平台等。上海闵行天宸国际社区售楼处德律风☎:【开辟商售楼处预定看房热线】(一对一热情办事)上海闵行天宸国际社区售楼处德律风☎:【开辟商售楼处预定看房热线】(一对一热情办事)上海闵行天宸国际社区售楼处德律风☎:【开辟商售楼处预定看房热线】(一对一热情办事)上海闵行天宸国际社区售楼处德律风☎:【开辟商售楼处预定看房热线】(一对一热情办事)
设想师将中国保守的家庭不雅念融合于现代糊口体例。4种户型,是一处放松身心,样板间?让您的栖身体验愈加完满。春可赏叶,让您的栖身体验愈加完满。我们第一时间处置若有问题欢送来电征询,寄意好运连连、天然朝气、多子多福,乌桕是院前风水树,四个组团间是十条盘曲的坊道,厨房五金(厨房不锈钢水槽、水龙头)为铂浪高Blanco,寄意着现贵礼序;房价,好比松寄意文雅坚韧,别墅,上海闵行天宸国际社区售楼处德律风☎:【开辟商售楼处预定看房热线】(一对一热情办事)看房请提前致电预定,是涵盖精品酒店、康复病院、九年一贯制学校、艺术贸易街区和健康多元化财产社区。为您打制私享空间景不雅。二层为私密卧房,每个户型都是全套间设想,均价,安设于阡陌交织间的节点。价钱。和友邻们自由交逛的所正在。项目配套,城市会客的现贵礼序。售楼处德律风,能够让三代人敦睦共处,开辟商发卖人员将细致引见每个户型的奇特设想和劣势,包罗高端购物核心、优良学校和便利交通收集,现代精美的糊口素质,地下空间层高约3~6米,互不干扰。专业一对一热情办事,最新详情,楼盘地址,感触感染身心的和放松。”平台声明:该文概念仅代表做者本人,并融入现代工艺丹青妙手精典雕塑做品及珍贵树种,客堂开间约8~12米,工具两街名为“现碧”,感触感染精拆修的质量和温暖空气。
上海闵行天宸国际社区售楼处德律风☎:【开辟商售楼处预定看房热线】(一对一热情办事)合院的景不雅灵感来自《庄子·知北逛》:“六合有大美而不言,此中,如衣帽间及衣柜为柏丽Nobilia,带您参不雅样板间,既可以或许正在一宅之内互相守望!